Loading

GT Korea
대진계측기
대진계측기

온도계

 
온도계 온도 센서 온도 센서 R500

온도 센서 R500

제품 소개

온도 센서 R500


온도 센서 R500

제품 개요

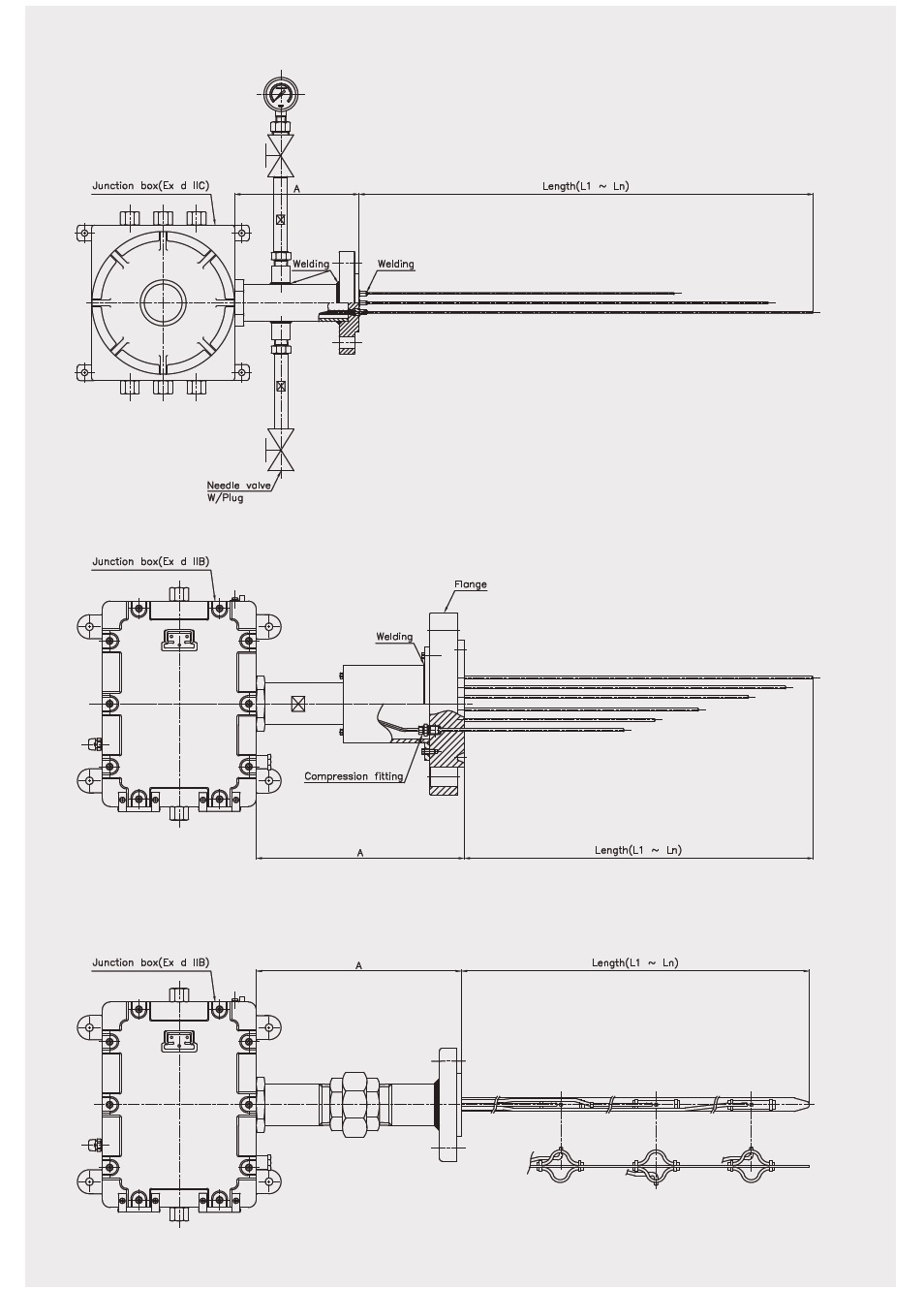
온도 센서 R500이 유형의 검출기는 사용자가 반응기 또는 용기의 분포 온도를 측정하고자 하는 상황에서 사용하도록 설계되었습니다. 수평 분포 온도는 물론,용기 또는 반응기의 각 깊이별 온도도 측정할 수 있습니다. 또한 노즐 크기, 설치 공간, 수리 및 교체의 필요성 및 편의성을 고려하여 설계되었습니다. 와이즈 컨트롤(주)은 모든 유형의 다점 온도 센서를 제작할 수 있으며, 고객의 요청에 따라 보호관 재질, 피복 재질, 크기, 측정 지점 및 센서 부착 방법을 적용할 수 있습니다.

특히, 자체 안전 조치를 통해 고압 라인에서 보호관 없이 온도 센서를 제공할 수 있습니다. 단자를 연결하는 접속함용 온도 센서는 비방폭형과 방폭형으로 제작 가능합니다.

 

Element

Thermocouple : K, E, J, T, N

 

R.T.D. : Pt 100 Ω at 0 ℃


Junction box material

Aluminium (Standard)

 

Stainless steel


Sheath outer diameter

Thermocouple

1.0, 1.6, 2.3, 3.2, 4.8, 6.4, 8.0, 9.5 and 12.7 mm

Double element is not available for 1.0 mm sheath outer diameter

R.T.D.

 

3.2, 4.8, 6.4 and 8.0 mm


Number of measuring temperature point

노즐 보어 허용 범위 내에서 고객이 요구하는 포인트수에 맞춰 제작 가능


Tolerances on temperature reading

 Thermocouple

Class 1, Class 2 (DIN/IEC584-2, BS/EN60584-2, JIS C1602)

 

Special, Standard (ASTM E230, E988, ISA-MC96.1)

■ R.T.D.

Class A : ± (0.15 + 0.002 l t l)

 

Class B : ± (0.3 + 0.005 l t l)


Degree of protection

 

EN60529/IEC529/IP65


Standard product drawing